Riccione Abissinia – Appartamento Ristrutturato a 100 mt dal Mare con Terrazzo
Italiano
900.000 €

Riccione Abissinia – Appartamento Ristrutturato a 100 mt dal Mare con Terrazzo

Appartamento in vendita • Riccione (Abissinia) - Viale Nino Bixio, 3
V025/3 - Eleganza che si percepisce al primo sguardo, atmosfera che conquista al primo passo.
Nel cuore della richiestissima zona Abissinia di Riccione, a soli 100 metri dal mare, questo raffinato appartamento rappresenta un perfetto equilibrio tra stile, comfort e posizione esclusiva.
Ristrutturato con finiture di pregio e arredi ricercati, si inserisce al secondo piano di un palazzo anch’esso oggetto di completa ristrutturazione, oggi valorizzato da linee moderne e dalla presenza di un ascensore completamente nuovo, a garanzia di praticità e comodità.
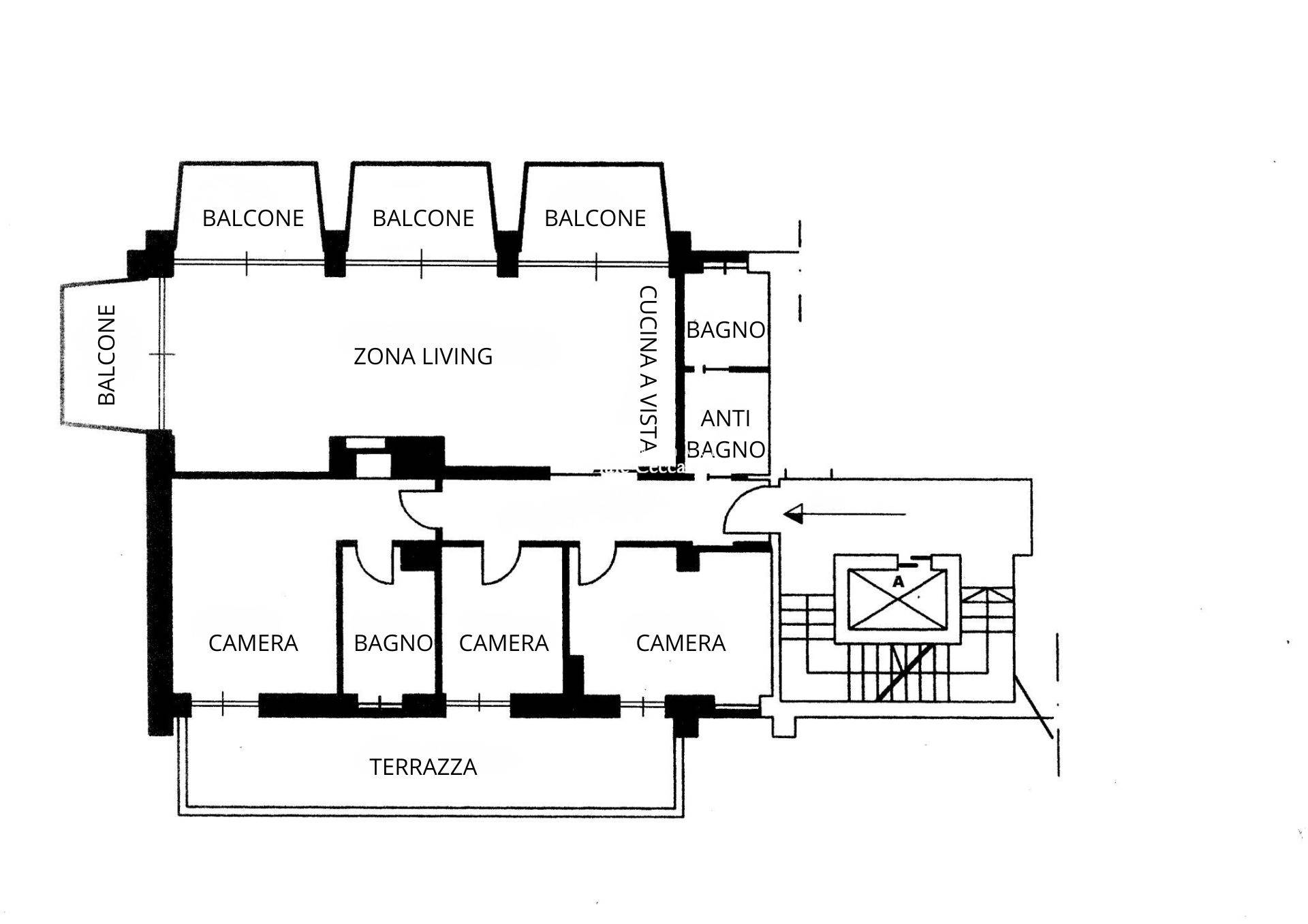
Varcata la soglia, si viene accolti dalla luminosa zona living di grande impatto, impreziosita da un camino di design che dona carattere e calore all’ambiente. La cucina a vista, elegante e contemporanea, si integra armoniosamente con lo spazio, mentre le ampie vetrate si aprono sui quattro balconi, regalando luce naturale e continuità tra interno ed esterno.
La zona notte, ben distribuita e riservata, è introdotta da un comodo disimpegno e ospita tre camere da letto finemente arredate, tutte con affaccio sull’ampio terrazzo: uno spazio intimo e suggestivo, ideale per momenti di relax all’aria aperta.
Completano la proprietà un bagno di servizio con box doccia e antibagno, e un secondo bagno con vasca, pensato per concedersi attimi di puro benessere.
Una dimora capace di emozionare, dove ogni dettaglio racconta cura e qualità, a pochi passi dal mare e nel contesto più esclusivo di Riccione.

Il presente annuncio ha esclusivamente finalità informative e non costituisce elemento contrattuale. Le informazioni riportate, incluse descrizione, planimetrie, superfici e ubicazione, sono da intendersi come indicative e non vincolanti per l’agenzia immobiliare
Caratteristiche principali
Codice
V025/3
Città
Riccione (Abissinia)
Categoria
Appartamento
Prezzo
900.000 €
Locali
4
Camere
3
Bagni
2
Mq
140
Balconi
4
Mq Balcone
40
Terrazzi
1
Piano
2
Classe energetica
In fase di valutazione
Stato Immobile
Ristrutturato
Grado
Signorile
Posizione
Mare
Panorama
Vista Aperta
Lati Liberi
3
Arredi
Arredato
Tipo Soggiorno
Salone
Tipo Cucina
A Vista

Accessori: Aria Condizionata, Ascensore, Camino, Doppi Vetri

Distanze
Posizione
Mare100 m
Mappa
Viale Nino Bixio 3, Riccione (RN)
Richiedi informazioni
Invia
Condividi su
Cookie preference