Affittasi ufficio nel cuore di Riccione
Italiano
15.600 € / anno

Affittasi ufficio nel cuore di Riccione

Ufficio in affitto • Riccione (Centro mare) - Piazzale Ceccarini
A239/3 - Nel cuore pulsante di Riccione, una delle location più esclusive e ricercate della Riviera Romagnola, proponiamo in affitto un moderno ufficio che unisce eleganza, funzionalità e comfort in un contesto urbano di prestigio.
L’immobile, facilmente accessibile tramite ascensore, si sviluppa su spazi ampi e luminosi, ideali per attività professionali che richiedono rappresentanza e benessere lavorativo. L’ampio ambiente principale, caratterizzato da grandi vetrate, garantisce un’eccellente illuminazione naturale e un diretto affaccio su balcone, creando un’atmosfera accogliente e produttiva.
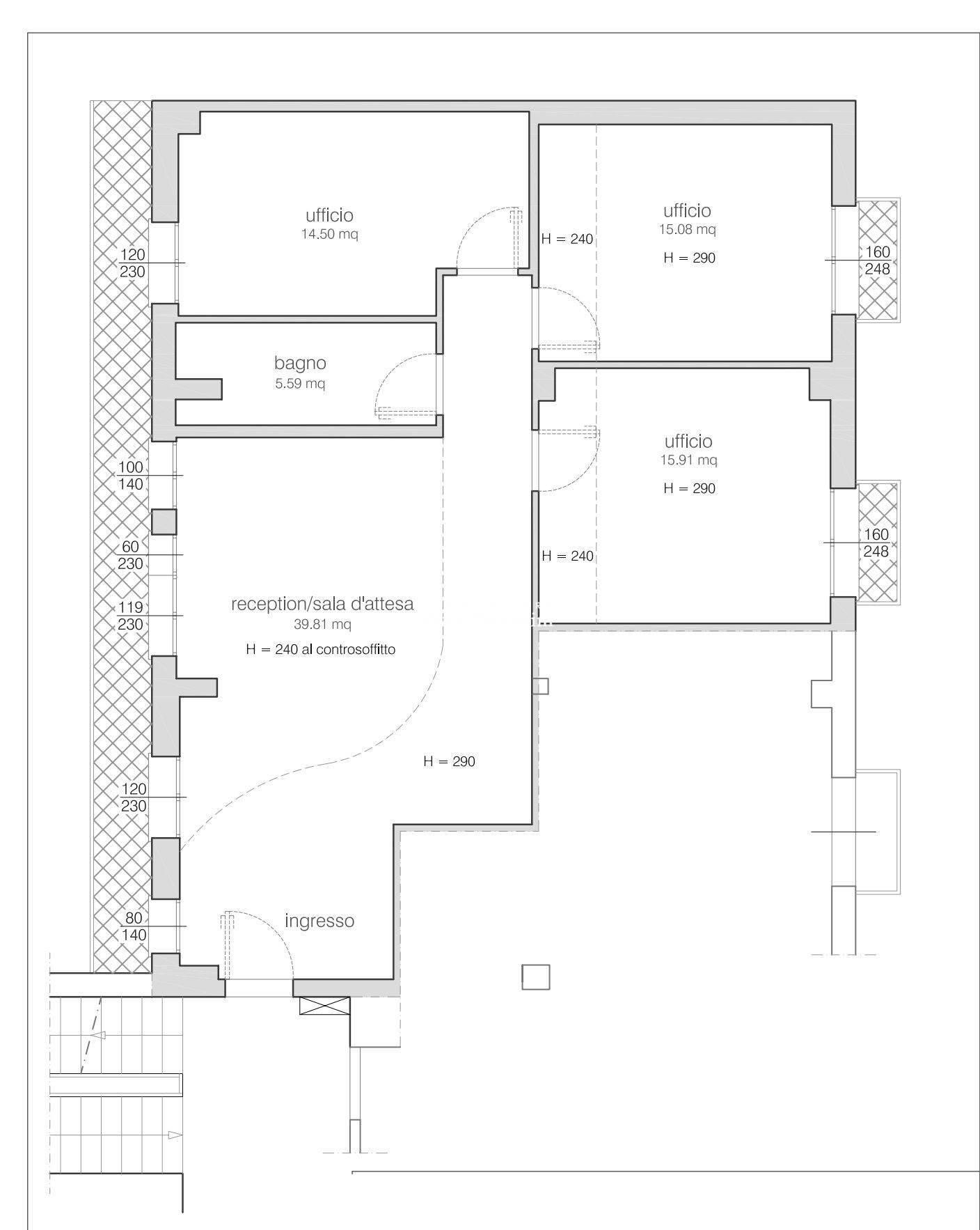
La distribuzione interna consente una flessibile organizzazione degli spazi, con la possibilità di realizzare un’area reception, open space operativo o sale riunioni, oltre a una zona dedicata a servizi o area break.
L’ufficio dispone inoltre di tre ampi vani indipendenti, ciascuno con accesso a balcone privato, perfetti come uffici direzionali o studi professionali, assicurando privacy, comfort e ottima ventilazione naturale. Completa la proprietà il bagno spazioso e funzionale.
Soluzione ideale per professionisti e aziende che desiderano uno spazio di lavoro contemporaneo in una delle zone più prestigiose di Riccione, con ambienti luminosi, ben distribuiti e in una posizione di assoluto valore.

Il presente annuncio ha esclusivamente finalità informative e non costituisce elemento contrattuale. Le informazioni riportate, incluse descrizione, planimetrie, superfici e ubicazione, sono da intendersi come indicative e non vincolanti per l’agenzia immobiliare
Caratteristiche principali
Codice
A239/3u
Città
Riccione (Centro mare)
Categoria
Ufficio
Prezzo
15.600 € / anno
Spese condominiali
1.000 € / anno
Locali
4
Camere
3
Bagni
1
Mq
113
Balconi
3
Mq Balcone
14
Piano
3
Classe energetica
A4
Stato Immobile
Buono
Grado
Signorile
Posizione
Centro
Panorama
Vista Mare
Lati Liberi
2
Giardino
No
Arredi
Non Arredato
Tipo Soggiorno
Soggiorno
Tipo Cucina
A Vista
Riscaldamento
Autonomo
Tipo Riscaldam.
Pompa di Calore
Tipo Impianto
Aria
Fonte Energetica
Elettrico
Acqua Calda
Autonoma
Infissi
Metallo
Serramenti
Buono
Pavim. Giorno
Parquet
Pavim. Notte
Parquet
Pavim. Cucina
Parquet
Pavim. Bagno
Gres Porcellanato
Cauzione
Sei Mesi
Canoni Anticipati
Tre Mesi
Tipo Contratto
6+6 Anni

Accessori: Aria Condizionata, Ascensore, Passaggio Pedonale, Porta Blindata

Distanze
Posizione
Centro120 m
Mare250 m
Mezzi di trasporto
Stazione dei treni450 m
Mappa
Piazzale Ceccarini , Riccione (RN)
Video
Richiedi informazioni
Invia
Condividi su
Cookie preference