Vivere la luce, a due passi dal mare di Riccione
Italiano
697.000 €

Vivere la luce, a due passi dal mare di Riccione

Appartamento in vendita • Riccione (Centro mare) - Piazzale Ceccarini
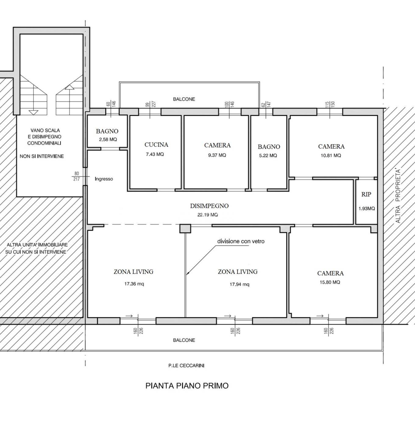
V281/3 - Nel cuore più autentico e ricercato di Riccione mare, all’interno di una elegante palazzina, si trova questo splendido appartamento dove luce, spazio e comfort si incontrano in perfetto equilibrio.
Appena varcata la soglia, si viene accolti da una grande zona living, ampia e luminosa, pensata per condividere momenti speciali, rilassarsi e vivere la casa ogni giorno con piacere. La cucina, separata e funzionale, dialoga armoniosamente con la zona giorno, rendendo l’ambiente ideale sia per la vita quotidiana che per accogliere ospiti.
La zona notte offre due camere matrimoniali, intime e rilassanti, una camera singola, perfetta per bambini, ospiti o studio, e un bagno dedicato. Un secondo bagno a servizio della zona giorno aggiunge praticità e comfort.
I quattro balconi avvolgono l’appartamento di luce naturale e aria di mare, regalando scorci esterni da vivere in ogni momento della giornata.
Una casa che profuma di mare, eleganza e benessere, perfetta per chi desidera abitare o investire in una delle zone più ambite di Riccione.

Il presente annuncio ha esclusivamente finalità informative e non costituisce elemento contrattuale. Le informazioni riportate, incluse descrizione, planimetrie, superfici e ubicazione, sono da intendersi come indicative e non vincolanti per l’agenzia immobiliare
.
Caratteristiche principali
Codice
V281/3u
Città
Riccione (Centro mare)
Categoria
Appartamento
Prezzo
697.000 €
Spese condominiali
1.100 € / anno
Locali
4
Camere
3
Bagni
2
Mq
137
Balconi
4
Mq Balcone
20
Piano
1
Classe energetica
A4
Stato Immobile
Buono
Grado
Signorile
Posizione
Centro
Panorama
Vista Aperta
Lati Liberi
2
Giardino
No
Arredi
Non Arredato
Tipo Soggiorno
Soggiorno
Tipo Cucina
Abitabile
Riscaldamento
Autonomo
Tipo Riscaldam.
Caldaia
Tipo Impianto
Radiatori
Fonte Energetica
Metano
Acqua Calda
Autonoma
Raffrescamento
Centralizzato
Infissi
Metallo
Serramenti
Buono
Persiana
Tapparella PVC
Pavim. Giorno
Parquet
Pavim. Notte
Parquet
Pavim. Cucina
Parquet
Pavim. Bagno
Gres Porcellanato

Accessori: Aria Condizionata, Armadio a Muro, Ascensore, Passaggio Pedonale, Porta Blindata, Ripostiglio

Distanze
Posizione
Centro120 m
Mare250 m
Mezzi di trasporto
Stazione dei treni450 m
Mappa
Piazzale Ceccarini , Riccione (RN)
Richiedi informazioni
Invia
Condividi su
Cookie preference